Our services: Advanced solutions for your home

Welcome to Advanced Fuel Systems, your trusted plumbing partner in Idaho Falls. Discover our commitment to integrity, quality craftsmanship, and customer-focused solutions. We're here to solve your plumbing challenges with expertise and care.

Our specialized plumbing services

We offer a range of specialized plumbing services tailored to meet your individual needs. Our approach focuses on understanding and responding to what you require, providing effective and practical solutions. We prioritize repairing existing equipment and never push unnecessary upsells.

Boilers & radiant heat

Expert boiler installation and repair services. We also specialize in radiant heat controls installation and repair to keep your home comfortable.

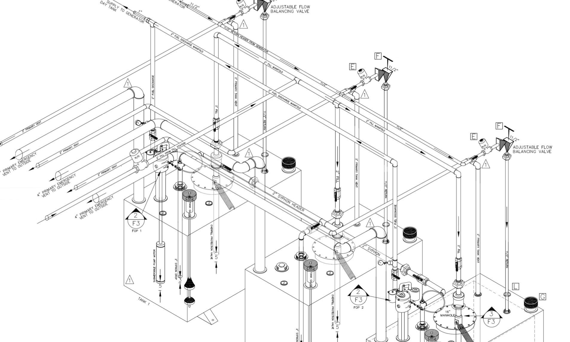
Pryco Day Tanks and Fill Stations

AFS Represents Pryco Day Tanks and Fuel Fill Stations.  Call us today for a free quote

Leak Detection & gas line services

Precise leak detection services using advanced Helium Gas technology, alongside safe propane and natural gas line installation.

Experience the Advanced Fuel Systems difference

At Advanced Fuel Systems, we make every effort possible to repair existing equipment, ensuring cost-effective solutions for our customers. We do not push upselling. If we can't fix it, we won't charge you. Experience integrity, quality craftsmanship guaranteed.

Unmatched expertise

Our team brings years of experience across multiple trades and crafts, with particular proficiency in electronic controls and piping systems. We also offer AutoCAD design services for precise and efficient solutions, ensuring every project is handled with the highest level of technical skill.

Your trusted partner in Idaho Falls

Serving Idaho Falls and surrounding areas, we are dedicated to providing solutions that prioritize your needs. We believe in transparency and honest work, ensuring you receive the best service without unnecessary upselling. Our goal is to solve your problems efficiently and effectively.

Create Your Own Website With Webador